Bei grossen Hallen z. B. wo mit sehr viel Wiederholung von Einzelteilen zu rechnen ist, wird diese Bauweise sehr gern angewendet.
Sie möchten Fertigteilpläne erstellen lassen? Gern erstellen wir Ihnen kurzfristig ein Angebot.
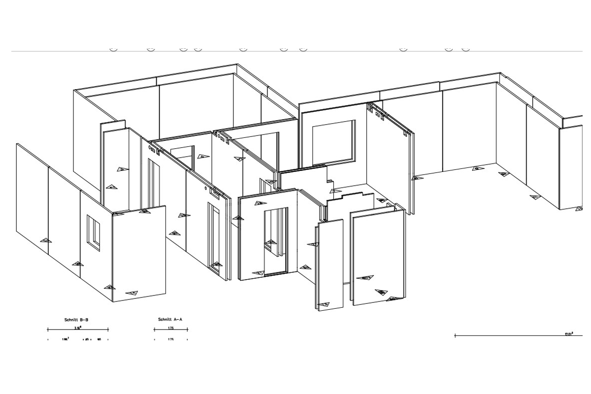
Beispiele Fertigteilpläne Siehe Plan (PDF) Weiterlesen ...
